This resource is intended for use by College of Engineering staff. This list compiles space information for meeting rooms, hotel spaces and other areas around the College and its departments. Please note that certain groups may hold priority access to select rooms. To view the location of a building, click on the building name.
Dean's Office staff resources
See space availability calendar
| Room 130
|
| Size | 30 person capacity, 465sf. |
| Equipment | Overhead projector, data projection cart, whiteboard, Zoom room capabilities, cloth boards, kitchenette with sink. Tables can be rearranged. |
| To reserve | Call A&A office, 543-1950. |
Check CSE's Conference room and AV page
| Gates Commons, 6th floor
|
| Size | |
| Equipment | Several ceiling-mounted data projectors, a large-screen plasma TV and surround sound, and attached kitchen. |
| To reserve | Call CSE office, 543-1695 or contact Amber Cochran. |
| Note | A wonderful room with floor-to-ceiling windows and terrace with stunning views over Husky Stadium, Lake Washington, and the Cascade Mountains. |
| Room 303
|
| Size | 40 person capacity |
| Equipment | Projector, screens, white board, podium |
| Furniture layout | Small groups/clusters seating |
| To reserve |
Online calendar system
Near the top of the page, click "Request a reservation."
|
The following rooms are available for Dean’s office staff to reserve through Outlook's scheduling assistant. Some rooms have priority for groups in the Dean’s office that have historically managed these spaces, as noted below. Our goal is to provide equitable access to all members of the Dean’s Office, and to be able to use our spaces more efficiently.
Please ensure that you have built enough time into your reservation for setup/clean up. Please take everything with you that you bring into the space, including food and drinks, office supplies, papers, decorations, etc.
| Room 242
|
| Outlook Calendar name | COE.Engineering Annex 242 |
| Size | 15-20 |
| Equipment | Laptop and dedicated projector available at the front desk. |
| Room 232
|
| Outlook Calendar name | COE.Engineering Annex 232 |
| Size | 8-10 |
| Equipment | Laptop and dedicated projector available at the front desk. |
| Room 237
|
| Size | Suitable for 1-2 person meeting |
| Equipment |
A desk and all-in-one computer that you can log on to as a desktop or use as an external monitor with a laptop. Instructions will be posted, and you can come to the front desk or email help@engr.washington.edu for troubleshooting.
|
| Priority group | Staff in cubicles/open spaces; student advising appointments; staff who are mostly teleworking but need a place to work for a temporary duration on campus; anyone else needing a space with a door. |
Fluke Hall - Washington Technology Center
This is a secure building with limited hours of availability.
| Bowen conference room, 1st floor
|
| Size |
25 person capacity, 560sf. See floor plan.
|
| Equipment | Overhead projector and screen, two whiteboards. |
| To reserve |
To reserve, UW Outlook Exchange users can “invite” fluke104@uw.edu to meetings to reserve the room or contact Uly Rivera, 206-221-8455
|
| North conference room, (Room 302)
|
| Size | 10 person capacity. |
| Equipment | Whiteboard. |
| To reserve |
Contact CoMotion to inquire about reservations.
|
| Priority group | Scheduling priority will be given to tenants of the CoMotion New Ventures Facility. You may get bumped by the department on short notice. |
| Conference Room 304J
|
| Size | 6 person capacity. |
| Equipment | Whiteboard. |
| To reserve |
Contact CoMotion to inquire about reservations.
|
| Priority group | Scheduling priority will be given to tenants of the CoMotion New Ventures Facility. You may get bumped by the department at short notice. |
| Conference Room 304L
|
| Size | 8 person capacity. |
| Equipment | Whiteboard |
| To reserve |
Contact CoMotion to inquire about reservations.
|
| Priority group | Scheduling priority will be given to tenants of the CoMotion New Ventures Facility. You may get bumped by the department at short notice. |
| Multi-Purpose Space (Room 300)
|
| Size | 24 seated or 40 standing. |
| Equipment | VGA/HDMI presentation screen; whiteboard. |
| To reserve |
Contact CoMotion to inquire about reservations.
|
| Priority group | Scheduling priority will be given to tenants of the CoMotion New Ventures Facility. You may get bumped by the department at short notice. |
| Room N230 - WRF Conference Room
|
| Size | 26 person capacity. |
| Equipment | Screen, phone, wireless access, and whiteboards.
Note that the room does not have a projector. |
| To reserve |
Use online calendar.
|
| Priority group | Priority is given to students. |
| Room N303
|
| Size | 32 person capacity. |
| Equipment | Note that the room does not have a projector. |
| To reserve |
Use online calendar.
|
| Room N403
|
| Size | 32 person capacity. |
| Equipment | Note that the room does not have a projector. |
| To reserve |
Use online calendar.
|
| Room N503 - Auth Conference Room
|
| Size | 32 person capacity. |
| Equipment | Note that the room does not have a projector. |
| To reserve |
Use online calendar.
|
| Priority group | Priority is given to BioE events, site visits, board meetings, and students. |
| Room 322
|
| Size |
30 person capacity, 394sf. See floor plan.
|
| Equipment | Overhead projector and screen, chalkboard, four 10' x 2' tables that can be rearranged. |
| To reserve | Call BioE office, 685-2000. |
Reservations can be made by current College of Engineering students, staff, and personnel with a valid UW NetID up to two weeks in advance. Explore the IEB's room gallery to find the perfect space for your meeting or event.
Loew Hall - College of Engineering
The following rooms are available for Dean’s office staff to reserve through Outlook's scheduling assistant. Some rooms have priority for groups in the Dean’s office that have historically managed these spaces, as noted below. Our goal is to provide equitable access to all members of the Dean’s Office, and to be able to use our spaces more efficiently.
Please ensure that you have built enough time into your reservation for setup/clean up. Please take everything with you that you bring into the space, including food and drinks, office supplies, papers, decorations, etc.
| Room 019
|
| Outlook Calendar name | COE.Loew 019 Classroom |
| Size | Approximately 30 people, seated. |
| Equipment | Movable tables and chairs; 55” touch-screen monitor with multiple inputs, including HDMI and USB. |
| Priority group | STARS, Academic Affairs: Prioritized for ENGR courses, and non-course reservation requests may not be confirmed more than a week before the start of an academic quarter. |
| Room 213
|
| Outlook Calendar name | COE.Loew 213 Classroom |
| Size | |
| Equipment | |
| Priority group | Academic Affairs: Prioritized for ENGR courses, and non-course reservation requests may not be confirmed more than a week before the start of an academic quarter. |
| Room 215
|
| Outlook Calendar name | COE.Loew 215 Classroom |
| Size | |
| Equipment | |
| Priority group | Academic Affairs: prioritized for ENGR courses, and non-course reservation requests may not be confirmed more than a week before the start of an academic quarter. |
| Room 322 |
| Outlook Calendar name | COE.Loew 322 |
| Size | Suitable for 1-2 person meeting |
| Equipment | A desk and all-in-one computer that you can log on to as a desktop or use as an external monitor with a laptop. Instructions will be posted, and you can come to the front desk or email help@engr.washington.edu for troubleshooting. |
| Priority group | Staff in cubicles/open spaces; student advising appointments; staff who are mostly teleworking but need a place to work for a temporary duration on campus; anyone else needing a space with a door. |
| Room 355
|
| Outlook Calendar name | COE.Loew 355 Conference Room |
| Size |
40 person capacity, 600sf. See floor plan.
|
| Equipment | Built in projector; air filters that you can turn on to your desired setting. |
| Priority group | COE Leadership team |
| Room 372
|
| Outlook Calendar name | COE.Loew 372 Conference Room |
| Size | 8 people, seated. |
| Equipment | Laptop and dedicated projector available at the front desk; air filters that you can turn on to your desired setting. |
| Room 014A
|
| Outlook Calendar name | COE.Loew 014A Conference Room |
| Size | 10 people, seated. |
| Equipment | One large central table with seating, phone. |
| Priority group | Academic advising staff. |
| Room 140
|
| Size | 16 person capacity |
| Equipment | Equipment for video conference calls |
| To reserve | Call main office, 543-5090. |
| Room 219A
|
| Size |
18 person capacity, 133sf. See floor plan.
|
| Equipment | Overhead projector and screen, whiteboard. |
| To reserve | Call main office, 543-5090. |
| Room 259
|
| Size |
12 person capacity, 237sf. See floor plan.
|
| Equipment | Overhead projector and screen, whiteboard. |
| To reserve | Call main office, 543-5090. |
| Room 110
|
| Size | 20 people, one presenter. |
| Equipment | Epson Wireless Projection and screen, VoIP phone, whiteboard. |
| To reserve | Available Monday through Friday, 9 a.m. to 5 p.m. For reservation requests or questions, call 206-685-0326. |
| Room 218
|
| Size |
14 person capacity, 322sf. See floor plan.
|
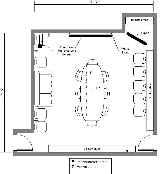
| Equipment | Epson Wireless Projection and screen, VoIP phone, whiteboard, tripod. |
| To reserve | Call CEE office, 206-685-0326. |
| Note | For internet access, ask for a guest password at the front desk. |
Paul G. Allen Center for Computer Science & Engineering
See Allen Center.
| Room 321
|
| Size |
21 person capacity, 318sf. See floor plan.
|
| Equipment | Overhead projector and screen, whiteboards, five 5' x 2.5' tables. |
| To reserve |
Contact Carter Beamish, 206-221-2678
|
| Room 233
|
| Size | Design lab, (Department Events and HCDE Course Reservations Only), 40 people |
| Equipment | Whiteboards, projector screens |
| To reserve | Room 233 is not available for reservation. |
| Room 232
|
| Size | Classroom, shared with ECE, 40 people |
| Equipment | Projector screen, whiteboards |
| To reserve |
Room reservation information can be found here.
|
| Room 329
|
| Size | Design lab, (Department Events and HCDE Course Reservations Only), 40 people |
| Equipment | Whiteboards, projector screens |
| To reserve | Room 329 is not available for reservation. |
| Room 243
|
| Size |
30 person capacity, 465sf. See floor plan.
|
| Equipment | LCD projector, overhead projector, screen, whiteboard. |
| To reserve |
To reserve email Carter Beamish or call 206-221-2678
|
| Room 264
|
| Size | 15 person capacity, 272sf. |
| Equipment | Overhead projector and screen, whiteboard, two TVs on carts, two 6' x 3' tables, side table. |
| To reserve | Call CEE office, 685-0326. |
| Note | For CEE use only. |